


【发布日期:2025-11-06】 【阅读:次】
|
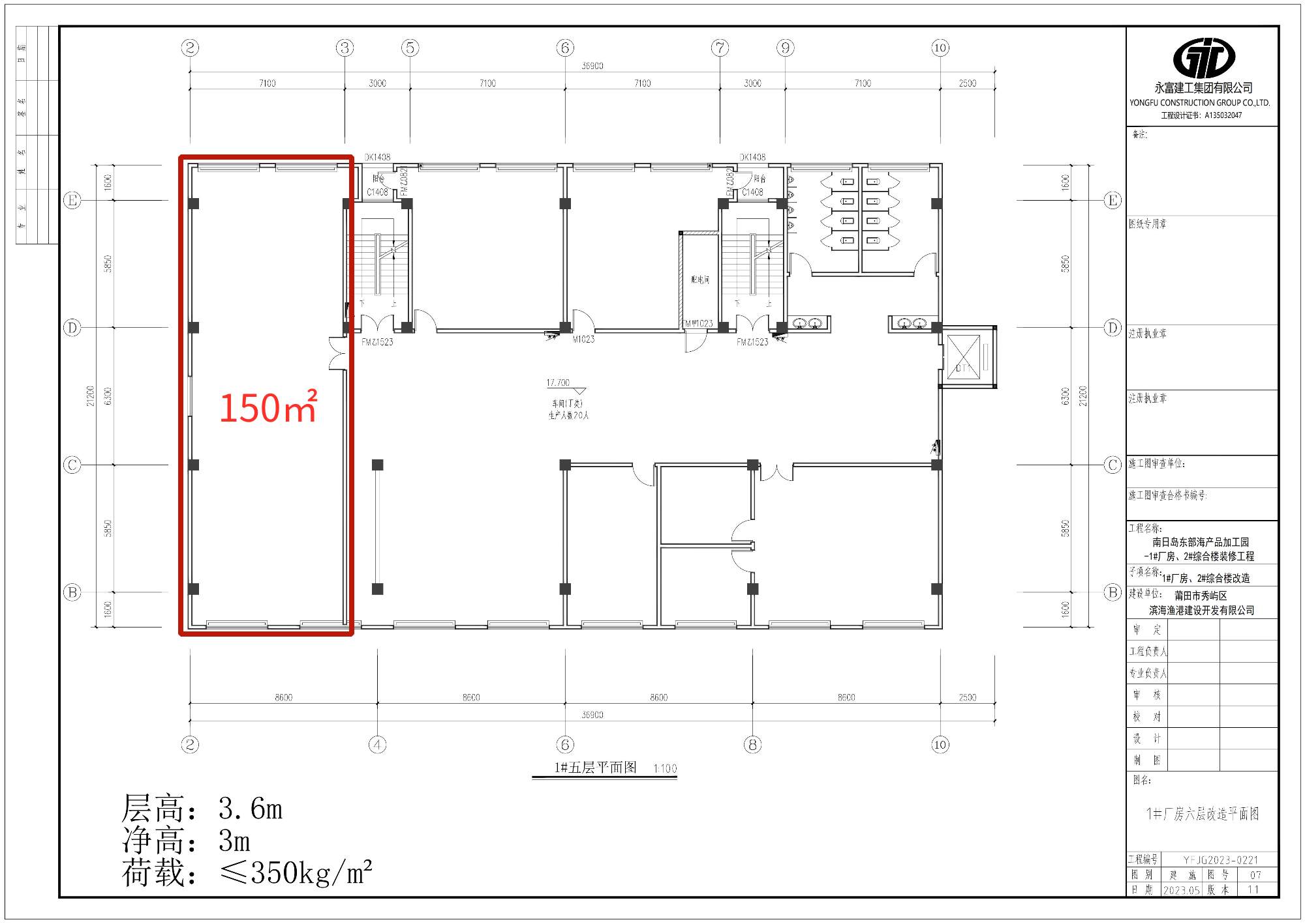
我司拟对南日岛东部海产品加工园项目配套办公用房进行公开招租,现欢迎具有资格的意向承租人前来参与竞价。 一、项目名称: 南日岛东部海产品加工园配套办公用房招租 二、项目地点: 莆田市秀屿区南日镇东岱村 300 号 三、资产整体情况 园区内现有厂房(1#)、综合楼(2#)及标准化冷链中心(4#)各一栋,整体占地面积13266.12㎡。本次出租的范围为B1-1#综合楼五层北侧150㎡办公区域,具体标的设置及标的底价等内容详见“七、标的信息”。 四、招租内容 (一)招租经营主体:本次招租对象的经营主体为可承担民事责任的自然人、组织、单位、法人、合作社等经济主体,企业的营业范围应含海产品生产加工、销售等海洋渔业相关的经营范围,有一定的市场经营能力和管理能力,并能独立承担风险,承租后,仅可用于海产品生产加工、销售等相关业务,可以较好地配合园区管理调度工作,经营过程不能对项目区水域及地面的环境造成污染,需有具体规定如下: 1、本项目需配备安全管理人员,实时把控潜在风险。 2、承租方应配合园区管理调度工作,否则我司有权收回标的使用权,违约责任由承租方自行承担。 (二)招租经营主体应符合的条件: 本次招租意向方应符合以下条件: 1、在经营活动中无重大违法记录。 2、与我司没有合同纠纷者或诉讼案件 3、通过“中国执行信息公开网”、“信用中国”、“中国政府采购网”、“全国企业信用信息公示系统”等网站查询未被列入失信被执行人、无不良信用信息及其他不良情形。 4、本次招租将采取公开招租的形式选择承租方,标的设置及标的底价详见“四、标的信息”。 五、招租方职责 提供相关场地供其使用,建设完善消防设施及污水处理设施。 六、标的设置及标的底价 根据我司市场调研并结合园区实际情况,本次招租的B1-1#综合楼五层北侧150㎡办公区域,单价定为15元/㎡·月,即180元/㎡·年,不包含物业费用、水电、卫生等费用;并根据市场反馈情况将租赁期限设置为一年。 本次招租将采取公开招租的形式选择承租方,如中标价提升,则租金做相应调整提升,一共为一个标的:B1-1#综合楼五层北侧部分区域,面积150m²。 七、投标办法及投标保证金缴纳 1、本次招标采取现场报价的办法进行,并按最高价中标法确定中标人。报价时若设定标有2家或2家以上参加竞标,以报价最高者为中标者。若出现报价相同的,以相同的报价作为新的标底价,进行第二次报价,以此类推,直至产生最高报价者为中标者。 2、本次投标采取先预交投标保证金后投标的办法,在规定时间内预交保证金后方有资格参加投标,逾期未交投标保证金的不能参加投标。 3、凡参加本次招租的投标者,需先交投标保证金(参加多个合同包,需缴纳多个合同包的投标保证金),中标者的投标保证金在中标后不退还,在按规定时间签订正式租赁合同后,转作履约保证金;未中标单位的投标保证金将全额退还。投标保证金可以通过转账、汇款的方式汇入甲方指定账户。账户信息如下: 账户:莆田市秀屿区滨海渔港建设开发有限公司 账号:9040410010010000147757 开户行:福建农商银行秀屿支行 4、本次公开招标采用现场报价的招标方式,每标的租金起标价格(标底价)见以上设定标底价,投标报价金额少于标底价视为无效标作废,投标报价金额高于标底价,以报价最高价者为中标者。现场报价时,金额须以“整百元”为增加额。一经报价,不得以任何借口反悔,否则按违约处理,保证金不予返还,并追究其经济法律责任。 5、中标后,由招标人将中标结果进行公示3个工作日,经公示无异议后,中标人须在收到中标通知书后须按中标价的10 %缴纳合同履约保证金并签订正式租赁合同。逾期未缴纳合同履约保证金并签订正式租赁合同的,视为中标人放弃对其所中标的租赁权,中标人所交纳的投标保证金转为违约金不予以退还,归招标人所有,并由招标人对中标人中标的标的另行组织招租。 6.履约保证金将在租期结束后,无息退还。履约保证金可以采用转账、汇款。实际租赁时间以标的交付使用开始计算,按年度缴纳租金。若在标的交付使用后中标人未及时缴纳租金的,视为违约,我司将没收履约保证金,且中标方需按每逾期一日向我司支付年租金万分之一的违约金。 八、公告发布及联系方式 1、发布公告的媒介 本项目本着公开、公平、公正、择优选择的原则,根据该项目的实际情况进行公开招租,本次招租公告在莆田市振兴乡村集团有限公司官方网站(www.ptnrjt.com)、莆田小鱼网(www.ptfish.com)、莆房网(bbs.0594.com)等渠道发布。 2、公告期限:公告时间自2025年11月7日至2025年11月21日。 3、公开招租时间: 我司将在2025年11月21日10时在莆田市秀屿区南日镇东岱村300号公开开标,请有报名投标人准时派人参加,开标完成后招租结果予以公示,公示时间3个工作日,在签订正式租赁合同后,本招租活动随即结束。 注:若只有一家投标人报名的,招租人可以直接选择该投标人为中标人。 携带有关材料材料如下: (一)个人身份证原件及复印件;企业的营业执照(复印件需加盖公章,并注明用于此项目报名)。 (二)代理人授权委托书;企业法定代表人证明书和授权委托书(本人出席无需委托授权材料)。 (三)招租条件中涉及的其他材料(“中国执行信息公开网”、“信用中国”、“中国政府采购网”、“全国企业信用信息公示系统”等网站查询结果)。 (四)投标保证金在递交投标文件的同时可通过转账、汇款或银行保函的形式向招租人缴纳,未中标的投标保证金在开标会后全额退还。中标者的投标保证金在中标后不退还,在按规定时间签订正式租赁合同后,转作履约保证金。 4.联系方式 招租方:莆田市秀屿区滨海渔港建设开发有限公司 联系地址:莆田市城厢区荔城南大道265号 联系人:林先生 联系电话:15880596846 监督电话:0594-6679889
|